Gladiolenstraat 2, Helmond

Vraagprijs   € 550.000 k.k.  

Omschrijving

Bent u op zoek naar een ruime en karakteristieke vrijstaande woning met garage in Helmond?
Dan is deze woning wellicht iets voor u!

OMGEVING
Gladiolenstraat 2 is gelegen op een ruime hoeklocatie in de gewilde wijk Beisterveld in Helmond-Oost. Deze straat staat bekend om haar rustige, groene uitstraling, ruime kavels en prettige woonomgeving. Het is een kindvriendelijke buurt waar u volop ruimte en privacy ervaart, terwijl de stedelijke voorzieningen van Helmond op korte afstand liggen.

In de directe omgeving vindt u alle dagelijkse voorzieningen: supermarkten, scholen voor verschillende leeftijden, sportverenigingen en speeltuinen. Ook het centrum van Helmond is eenvoudig bereikbaar, met een breed aanbod aan winkels, horeca en culturele voorzieningen.

Voor wie graag de natuur opzoekt, biedt de omgeving verschillende wandel- en fietsroutes langs groene zones en parken. Hierdoor combineert u het comfort van stadsvoorzieningen met het plezier van een rustige, groene leefomgeving.

De ligging is bovendien zeer goed bereikbaar: via de hoofdwegen en uitvalswegen bent u snel in Eindhoven, Deurne of andere plaatsen in de regio. Openbaar vervoer is eveneens op korte afstand aanwezig.

INDELING

Bij aankomst parkeert u uw auto comfortabel aan de voorzijde op de openbare weg of op uw eigen oprit, met ruimte voor minimaal twee voertuigen. Aan de linkerzijde van de woning vindt u de karakteristieke entree, die uitnodigt om binnen te stappen.

Entree & hal
Bij binnenkomst ervaart u direct de warme, authentieke sfeer van deze woning. De hal is voorzien van een houten vloer en lambrisering aan de wanden. Vanuit de hal heeft u toegang tot het toilet, de trapopgang naar de eerste verdieping en een loopdeur naar de woonkamer.

Woonkamer
De woonkamer is een absolute eyecatcher. De grote erker over de volledige breedte, voorzien van facet geslepen glas-in-lood, laat een overvloed aan natuurlijk licht binnenstromen en vormt het stralende middelpunt van de ruimte. De houten vloer, radiator ombouwen, houtkachel (eventueel geschikt voor verwarming van de gehele woning) en een karakteristieke bar in het midden van de kamer geven de woonkamer een ongeëvenaarde sfeer.
Het eetgedeelte aan de achterzijde beschikt over een vaste kastenwand, schuifpui en loopdeur naar de tuin en staat in open verbinding met de keuken. Vanuit de woonkamer is tevens de ruime kelder bereikbaar.

Kelder
Via loopdeur heeft u toegang naar de kelder van ca. 6 m2.

Keuken
De landelijke keuken in hoekopstelling is voorzien van een natuurstenen werkblad, grote raampartij met uitzicht op de tuin, mengkraan met spoelbak, vaatwasser, 5-pits gaskookplaat met geïntegreerd afzuigsysteem, combi-oven/magnetron en inbouwspots. Voorzien van voldoende onder- en bovenkasten en een Amerikaanse koel- en vriescombinatie, is dit een keuken die praktisch én stijlvol is.

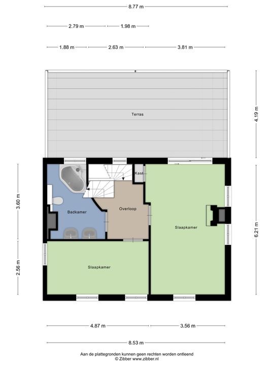
1e VERDIEPING
De overloop biedt toegang tot 2 ruime slaapkamers en een badkamer.

Slaapkamer I
Deze is ruim van opzet, voorzien van inbouwkast, diverse raampartijen en een schuifpui naar een zeer ruim dakterras van ca. 35 m2, met panoramisch uitzicht.

Slaapkamer II
Deze slaapkamer is voorzien van een laminaatvloer, radiatorombouw, behangen wanden en veel natuurlijk licht. De ramen aan de voorzijde zijn uitgerust met markiezen.

Badkamer
De volledig betegelde badkamer is voorzien van twee wastafels, een toilet, ligbad, inbouwkast en designradiator. Het raam zorgt voor extra ventilatie en lichtinval.

2e VERDIEPING
De overloop biedt ruimte voor de cv-opstelling en witgoedaansluitingen. Via een harmonicadeur is slaapkamer 3 bereikbaar, voorzien van vloerbedekking, een grote dakkapel over de volledige breedte en inbouwspots, waardoor ook hier veel lichtinval is en een ruimtelijk gevoel ontstaat.

Tuin & garage
De achtertuin biedt veel privacy en is voorzien van een berging en het gezellige “ons prieel”, ideaal om te ontspannen of gasten te ontvangen. Diverse borders en volwassen beplanting maken de tuin sfeervol en groen. Vanuit de tuin is er toegang tot de achterpoort en de garage van circa 20 m², voorzien van elektrische roldeur en elektra.

Kortom: Een uitzonderlijke vrijstaande woning op een hoeklocatie, met een panoramisch dakterras, karakteristieke details en royale leefruimtes - perfect voor wie stijlvol en comfortabel wil wonen.

Wilt u weten wat de verkoopmogelijkheden van uw eigen woning zijn? Neem gerust eens contact met ons op voor een vrijblijvend verkoopadvies.

Kopers opgelet: Bij woningen ouder dan 40 jaar wordt er standaard een ouderdomsclausule in de koopakte opgenomen!

Verkopers verlangen een waarborgsom/bankgarantie ter grootte van 10% van de koopsom.

Ons kantoor besteedt de uiterste zorg aan de betrouwbaarheid en actualiteit van de gegevens in de door ons samengestelde verkoopbrochure. Onjuistheden en onvolledigheden kunnen echter voorkomen. Aan de door ons gepresenteerde gegevens waaronder de teksten en plattegronden kunnen geen rechten worden ontleend. Twijfelt u aan de juistheid van de gegevens, vraag dan hoe deze zijn verkregen of kom nog een keer kijken. Probeer te allen tijde alle voor u relevante informatie vooraf te verkrijgen.

Kenmerken

Vraagprijs
€ 550.000 k.k.
Status
Beschikbaar
Oplevering
In overleg

Bouw

Soort woonhuis
Eengezinswoning, Vrijstaande woning
Soort bouw
Bestaande bouw
Bouwjaar
1957
Onderhoud binnen
Goed
Onderhoud buiten
Goed

Oppervlakten en inhoud

Woonoppervlakte
169m²
Perceeloppervlakte
406m²
Overig oppervlakte
6m²
Inhoud
665m³

Indeling

Aantal kamers
4
Aantal slaapkamers
3
Aantal badkamers
1
Verdiepingen
3
Voorzieningen
Mechanische ventilatie, Natuurlijke ventilatie, Rolluiken, Rookkanaal, Schuifpui, TV-Kabel

Energie

Energielabel
D
Isolatie
Dakisolatie, Dubbel glas, Vloerisolatie
Warm water
C.V.-ketel
Verwarming
C.V.-ketel
Ketel
Nefit (2008, Combi-ketel, Eigendom)

Buitenruimte

Ligging
Aan rustige weg, In woonwijk
Balkon
Ja
Tuin
Achtertuin, Voortuin, Zijtuin, Zonneterras
Achtertuin
Noordoost, 120m², 1500×800cm
Schuur
Vrijstaand hout

Garage

Soort garage
Vrijstaand steen
Capaciteit
1
Afmetingen
22m², 290×750
Voorzieningen
Met elektrische deur, Voorzien van elektra

Plattegronden

Locatie

[ { "address": "Gladiolenstraat 2", "zipCode": "5701 EL", "city": "Helmond", "lat": 51.4767654, "lng": 5.6759376 } ]
[{"featureType":"water","elementType":"geometry","stylers":[{"color":"#e9e9e9"},{"lightness":17}]},{"featureType":"landscape","elementType":"geometry","stylers":[{"color":"#f5f5f5"},{"lightness":20}]},{"featureType":"road.highway","elementType":"geometry.fill","stylers":[{"color":"#ffffff"},{"lightness":17}]},{"featureType":"road.highway","elementType":"geometry.stroke","stylers":[{"color":"#ffffff"},{"lightness":29},{"weight":0.2}]},{"featureType":"road.arterial","elementType":"geometry","stylers":[{"color":"#ffffff"},{"lightness":18}]},{"featureType":"road.local","elementType":"geometry","stylers":[{"color":"#ffffff"},{"lightness":16}]},{"featureType":"poi","elementType":"geometry","stylers":[{"color":"#f5f5f5"},{"lightness":21}]},{"featureType":"poi.park","elementType":"geometry","stylers":[{"color":"#dedede"},{"lightness":21}]},{"elementType":"labels.text.stroke","stylers":[{"visibility":"on"},{"color":"#ffffff"},{"lightness":16}]},{"elementType":"labels.text.fill","stylers":[{"sa turation":36},{"color":"#333333"},{"lightness":40}]},{"elementType":"labels.icon","stylers":[{"visibility":"off"}]},{"featureType":"transit","elementType":"geometry","stylers":[{"color":"#f2f2f2"},{"lightness":19}]},{"featureType":"administrative","elementType":"geometry.fill","stylers":[{"color":"#fefefe"},{"lightness":20}]},{"featureType":"administrative","elementType":"geometry.stroke","stylers":[{"color":"#fefefe"},{"lightness":17},{"weight":1.2}]}]

Reageer

Uw bericht is naar ons verzonden. Wij nemen zo snel mogelijk contact met u op.

Er is iets mis gegaan met het versturen van het formulier.
Controleer of u alle velden (goed) heeft ingevoerd en probeer het nog een keer.

recaptcha
reCAPTCHA
PrivacyTerms