Deze woning wordt u aangeboden door Van Der Duim Makelaardij.
Bent u op zoek naar een vrijstaande woning met 4 slaapvertrekken, 2 badkamers en een separate speelkamer annex kantoor op de begane op korte op korte afstand van het centrum van Eindhoven doch uitstekende en snelle verbinding naar de A2 en A50. Dan is deze woning wellicht iets voor u!
OMGEVING
Jacob van Campenweg 57 te EIndhoven is gelegen in een rustige, groene en geliefde kleinschalige opgezette woonwijk "Driehoeksbos" in stadsdeel Woensel, waar comfort en bereikbaarheid perfect samenkomen. De straat kenmerkt zich door een prettige woon sfeer, veel groen en voornamelijk bestemmingsverkeer, wat bijdraagt aan een veilig en ontspannen leefklimaat.
In de directe omgeving vindt u diverse voorzieningen zoals winkels, supermarkten, scholen, kinderopvang en sportfaciliteiten. Ook het stadscentrum van Eindhoven, met een breed aanbod aan winkels, restaurants, cultuur en uitgaansgelegenheden, zijn eenvoudig en snel bereikbaar.
Daarnaast is de woning gunstig gelegen ten opzichte van uitvalswegen en openbaar vervoer, waardoor omliggende steden en bedrijvencentra, waaronder de High Tech Campus en ASML, vlot bereikbaar zijn.
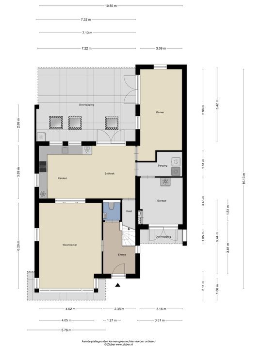
INDELING
Bij aankomst bereikt u de woning met een dubbele oprit waar u aan weerszijde van de woning uw auto zowel links als rechts kunt parkeren. Dit biedt plaats aan meerdere voertuigen en zorgt voor optimaal parkeergemak.
Entree & Hal
Via de entree komt u binnen in een ruime en verzorgde hal, voorzien van een garderobe, een royaal gastentoilet met fonteintje en de trapopgang naar de eerste verdieping. Vanuit de hal heeft u toegang tot de woonkamer. De hal is belegd met een tegelvloer voorzien van vloerverwarming, hetgeen direct bijdraagt aan het comfortabele woonklimaat.
Woonkamer
De woonkamer met ensuite woonkeuken, ademt sfeer en licht, mede dankzij de karakteristieke erker aan de voorzijde, die zorgt voor een prachtige natuurlijke lichtinval. De wanden zijn strak afgewerkt en het plafond is voorzien van stijlvol stukwerk voorzien van sierlijsten en inbouwverlichting. De woonkamer is eveneens belegd met een tegelvloer met vloerverwarming en staat via ensuite deuren in verbinding met de leefkeuken.
Leefkeuken
De royale leefkeuken is uitgevoerd in een landelijke stijl en vormt een fijne plek om samen te komen. De keuken is ruim van opzet, geplaatst in een praktische L-vorm en voorzien van een natuurstenen werkblad. Dankzij de diverse raampartijen geniet u hier van veel daglicht. De keuken is compleet uitgerust met een koelkast, een 6-pits gaskookplaat met geïntegreerd afzuigsysteem, oven, magnetron, vaatwasser en een natuurstenen spoelbak met mengkraan. Via de openslaande tuindeuren heeft u direct toegang tot de royale terrasoverkapping die is uitgerust met een gezellige bar. Het overdekte terras is in koelere dagen tevens af te sluiten met op maat gemaakte, transparante terrasafdichting. Voorts toegang tot de tuin.
Multifunctionele ruimte / kantoor, speel- annex slaapkamer
Aansluitend bevindt zich een multifunctionele ruimte, momenteel ingericht als loungekamer, maar uitstekend geschikt als kantoor of speel- of slaapkamer. Deze ruimte is voorzien van een tegelvloer met vloerverwarming, strak afgewerkte wanden en een gestukt plafond met sierlijst en inbouwspots. Vanuit deze kamer heeft u fraai uitzicht op en een uitstekende betrokkenheid met de achtertuin. De schuifpui naar de tuin en de vele raampartijen in deze ruimte zorgen voor een prettige lichtinval.
Bijkeuken & Garage
De bijkeuken is praktisch ingericht en voorzien van witgoedaansluitingen en extra opbergruimte. In deze ruimte zijn voorzieningen getroffen voor een mogelijke badkamer op de begane grond. Vanuit de bijkeuken heeft tevens toegang tot de berging, die beschikt over een dubbele garagedeuren. In deze ruimte treft u extra opbergruimte ook de mogelijkheid voor het stallen van bijvoorbeeld fietsen en of motoren. De uitgebreide meterkast is eveneens in deze ruimte geplaatst.
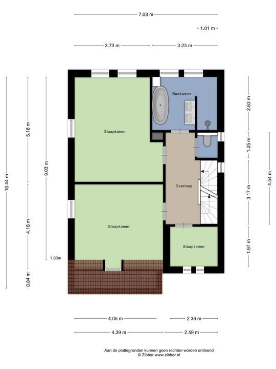
EERSTE VERDIEPING
De gehele eerste verdieping is voorzien van vloerverwarming en en elk slaapvertrek is voorzien van een warmtepomp airconditioning . Vanuit de overloop heeft u toegang tot drie slaapkamers, een separaat toilet en de badkamer.
Slaapkamervertrekken (drie)
De drie slaapkamers op de eerste verdieping zijn keurig en neutraal afgewerkt met een pvc vloer, strak gestuukte wanden en plafonds en beschikken over diverse raampartijen die zorgen voor een prettige natuurlijke lichtinval. De karakteristieke paneeldeuren geven de verdieping een stijlvolle uitstraling. De masterbedroom is bovendien voorzien van airconditioning, wat bijdraagt aan extra comfort.
Eerste Badkamer
De badkamer op de eerste verdieping is verzorgd en functioneel ingericht. De ruimte is volledig betegeld en voorzien van een ligbad, een diepe en brede inloopdouche en een wastafel met opberg kastruimte. Dankzij de praktische indeling en nette afwerking is dit een comfortabele badkamer voor dagelijks gebruik. Een raampartij biedt, naast de mechanische ventilatie in deze ruimte, zeer prettig daglicht en extra natuurlijke ventilatiemogelijkheden.
TWEEDE VERDIEPING
Ook de tweede verdieping is volledig uitgerust met vloerverwarming. De overloop biedt toegang tot slaapkamer vier, een praktische berging in combinatie met de installatieruimte en een tweede badkamer.
Tweede badkamer
De tweede badkamer is compleet ingericht met een whirlpool ligbad, douche, wastafel en toilet. Een dakraam zorgt voor natuurlijke lichtinval en extra ventilatiemogelijkheden.
Tuin
De achtertuin biedt een uitzonderlijke mate van privacy en is fraai aangelegd. De tuin beschikt over een royale overkapping met gezellige bar, die desgewenst volledig kan worden afgesloten, en is voorzien van elektra en inbouwspots. Daarnaast zijn er een zonneterras, een gazon en een houten tuinberging met veranda. De tuin is omheind met volwassen groen, wat bijdraagt aan het beschutte karakter.
Aan de linkerzijde een royale oprit met een dubbele poort die toegang geeft tot de tuin, terwijl aan de rechterzijde een tweede oprit met een directe toegang middels een garagedeuren naar een ruime berging.
Bijzonderheden:
- Keurig onderhouden instapklare vrijstaande woning;
- Centraal gelegen t.o.v. alle voorzieningen;
- Maar liefst ruim 200 m² aan gebruiksoppervlakte;
- Volledig geïsoleerde energiezuinige woning met energielabel A+;
- Grote woonkeuken;
- 4 slaapkamers en 2 badkamers;
- 23 zonnepanelen.
Kortom: deze woning is zeker een bezichtiging waard!
Verkopers verlangen een waarborgsom/bankgarantie ter grootte van 10% van de koopsom.
Wilt u weten wat de verkoopmogelijkheden van uw eigen woning zijn? Neem gerust eens contact met ons op voor een vrijblijvend verkoopadvies.
Ons kantoor besteedt de uiterste zorg aan de betrouwbaarheid en actualiteit van de gegevens in de door ons samengestelde verkoopbrochure. Onjuistheden en onvolledigheden kunnen echter voorkomen. Aan de door ons gepresenteerde gegevens waaronder de teksten en plattegronden kunnen geen rechten worden ontleend. Twijfelt u aan de juistheid van de gegevens, vraag dan hoe deze zijn verkregen of kom nog een keer kijken. Probeer te allen tijde alle voor u relevante informatie vooraf te verkrijgen.
ENGLISH VERSION
This property is offered to you by Van Der Duim Makelaardij.
Are you looking for a detached home with 4 bedrooms, 2 bathrooms, and a separate playroom/office on the ground floor, located a short distance from the center of Eindhoven yet with excellent and quick connections to the A2 and A50 highways? Then this property might be exactly what you are looking for!
LOCATION
Jacob van Campenweg 57 in Eindhoven is located in a quiet, green, and highly sought-after small-scale residential neighborhood called “Driehoeksbos” in the Woensel district, where comfort and accessibility come together perfectly. The street is characterized by a pleasant residential atmosphere, plenty of greenery, and mainly local traffic, contributing to a safe and relaxed living environment.
In the immediate vicinity you will find various amenities such as shops, supermarkets, schools, childcare facilities, and sports facilities. The city center of Eindhoven, with its wide range of shops, restaurants, cultural venues, and nightlife, is also easily and quickly accessible.
In addition, the property is conveniently located with regard to major roads and public transportation, allowing surrounding cities and business centers, including the High Tech Campus and ASML, to be reached quickly.
LAYOUT
Upon arrival you reach the property via a double driveway where you can park on both the left and right side of the house. This offers space for multiple vehicles and provides optimal parking convenience.
Entrance & Hall
Through the entrance you enter a spacious and well-maintained hallway, equipped with a wardrobe area, a generous guest toilet with washbasin, and the staircase to the first floor. From the hall you have access to the living room. The hall features tiled flooring with underfloor heating, immediately contributing to the comfortable living climate.
Living Room
The living room, connected to the kitchen via ensuite doors, radiates atmosphere and light, partly thanks to the characteristic bay window at the front which provides beautiful natural light. The walls are neatly finished and the ceiling features stylish plasterwork with decorative moldings and recessed lighting. The living room is also fitted with tiled flooring with underfloor heating and connects to the kitchen through ensuite doors.
Kitchen
The spacious kitchen is designed in a country style and forms a pleasant place to gather. The kitchen is generously laid out in a practical L-shape and equipped with a natural stone countertop. Thanks to the various windows, the space benefits from plenty of daylight. The kitchen is fully equipped with a refrigerator, a 6-burner gas stove with integrated extraction system, oven, microwave, dishwasher, and a natural stone sink with mixer tap. Through the French doors you have direct access to the large covered terrace equipped with a cozy bar. On cooler days, the covered terrace can also be fully enclosed with custom-made transparent terrace enclosures. From here you also have access to the garden.
Multifunctional Room / Office / Playroom or Bedroom
Adjacent to the kitchen is a multifunctional room, currently set up as a lounge room but perfectly suitable as an office, playroom, or bedroom. This space features tiled flooring with underfloor heating, neatly finished walls, and a plastered ceiling with decorative molding and recessed spotlights. From this room you have a lovely view of and strong connection to the backyard. The sliding doors and multiple windows provide pleasant natural light.
Utility Room & Storage / Garage
The utility room is practically arranged and equipped with connections for washing appliances and additional storage space. In this room, provisions have been made for a possible bathroom on the ground floor. From the utility room you also have access to the storage room, which has double garage doors. This space offers additional storage and the possibility to store bicycles and/or motorcycles. The extensive electrical panel is also located here.
FIRST FLOOR
The entire first floor is equipped with underfloor heating and each bedroom has heat-pump air conditioning. From the landing you have access to three bedrooms, a separate toilet, and the bathroom.
Bedrooms (Three)
The three bedrooms on the first floor are neatly and neutrally finished with PVC flooring, smooth plastered walls and ceilings, and several windows that provide pleasant natural light. The characteristic panel doors give the floor a stylish appearance. The master bedroom is also equipped with air conditioning, providing additional comfort.
First Bathroom
The bathroom on the first floor is neat and functionally designed. The space is fully tiled and equipped with a bathtub, a deep and wide walk-in shower, and a sink with storage cabinet. Thanks to the practical layout and neat finishing, this is a comfortable bathroom for everyday use. A window provides pleasant daylight and additional natural ventilation alongside the mechanical ventilation system.
SECOND FLOOR
The second floor is also fully equipped with underfloor heating. The landing provides access to the fourth bedroom, a practical storage room combined with the installation room, and a second bathroom.
Second Bathroom
The second bathroom is fully equipped with a whirlpool bathtub, shower, sink, and toilet. A skylight provides natural daylight and additional ventilation options.
Garden
The backyard offers an exceptional degree of privacy and is beautifully landscaped. The garden features a large covered terrace with a cozy bar that can be fully enclosed if desired, and it is equipped with electricity and recessed lighting. In addition, there is a sun terrace, a lawn, and a wooden garden shed with veranda. The garden is surrounded by mature greenery, contributing to its sheltered character.
On the left side there is a spacious driveway with a double gate providing access to the garden, while on the right side there is a second driveway with direct access via garage doors to a large storage area.
Special Features
- Well-maintained, move-in-ready detached home
- Centrally located in relation to all amenities
- Over 200 m² of usable living space
- Fully insulated, energy-efficient home with energy label A+
- Large living kitchen
- 4 bedrooms and 2 bathrooms
- 23 solar panels
In short: this property is definitely worth a viewing!
The sellers require a deposit/bank guarantee equal to 10% of the purchase price.
Would you like to know the selling possibilities for your own home? Feel free to contact us for a non-binding sales consultation.
Our office takes the utmost care to ensure the reliability and accuracy of the information in this sales brochure. However, inaccuracies and incompleteness may occur. No rights can be derived from the information presented by us, including texts and floor plans. If you have doubts about the accuracy of the information, please ask how it was obtained or schedule another viewing. Always try to obtain all relevant information beforehand.




