OPEN HUIS ZONDAG 30 NOVEMBER 2025 VAN 11.00 TO 12.00 UUR
Deze woning wordt u te koop aangeboden door Van der Duim makelaardij
Bent u op zoek naar een leuke tussenwoning op een fijne en kindvriendelijke locatie in Geldrop?
Dan is deze woning wellicht iets voor u!
OMGEVING
Kievitstraat 19 is gelegen in een rustige, groene woonstraat met louter bestemmingsverkeer in de geliefde wijk Braakhuizen-Noord te Geldrop. Deze wijk staat bekend om haar prettige woonklimaat, kindvriendelijke karakter en de gunstige ligging ten opzichte van alle voorzieningen. Hier woont u in een rustige omgeving met volop ruimte, terwijl het levendige centrum van Geldrop binnen enkele minuten bereikbaar is.
In de directe nabijheid vindt u allerlei dagelijkse voorzieningen zoals supermarkten, basisscholen, sportverenigingen en buurtwinkels. Ook zijn er diverse parken en speelveldjes in de wijk, ideaal voor gezinnen met kinderen of iedereen die van een groene woonomgeving houdt.
Het centrum van Geldrop ligt op fietsafstand en biedt een gevarieerd aanbod van winkels, gezellige horeca en culturele voorzieningen. Bovendien bevindt zich het treinstation van Geldrop op korte afstand, waardoor u binnen no-time in Eindhoven of andere omliggende plaatsen bent. De wijk is goed ontsloten via de nabijgelegen A67 en Nuenenseweg, waardoor de locatie uitstekend bereikbaar is voor zowel forenzen als lokale bewoners.
INDELING
Bij aankomst bereikt u de rustige en kindvriendelijke straat, waar u uw auto eenvoudig voor de deur parkeert. De verzorgde voortuin en karakteristieke entree vormen een warme ontvangst bij binnenkomst.
Entree & Hal
U wordt ontvangen in een lichte hal, voorzien van een tegelvloer met vloerverwarming, meterkast en trapopgang naar de eerste verdieping. Vanuit de hal is er een loopdeur naar de woonkamer, waardoor een prettige doorstroming ontstaat.
Woonkamer
De woonkamer is voorzien van een moderne tegelvloer met eveneens vloerverwarming, strak gestuukte wanden en plafonds die zijn voorzien van inbouwspots. Het grote raam laat veel natuurlijk licht binnen en creëert een prettige, lichte sfeer. De woonkamer wordt geraffineerd gescheiden van de keuken door een fraaie eetbar maar staat eveneens in een goede verbinding met een knus en zeer gezellig loungegedeelte waar een sfeervolle houtkachel het geheel compleet maken. De aanwezigheid van airconditioning zorgt voor extra comfort in hele warme maar ook op hele koude dagen.
Keuken
De keukeninrichting is aan de achterzijde van de woning gesitueerd en is in een L-opstelling gecombineerd met een wandopstelling geplaatst. Deze moderne keuken is onder meer voorzien van een Amerikaanse koelkast, oven, magnetron, een zeer groot betegeld aanrechtblad, een vaatwasser, spoelbak met mengkraan inclusief met kokend waterfunctie en een 4-pits gaskookplaat met afzuigkap. Er is meer dan voldoende opbergruimte door de vele onder- en bovenkasten. Dankzij de lichtkoepel komt hier extra natuurlijk licht binnen en via een loopdeur met zijraam heeft u toegang tot de aangebouwde serre en de tuin.
Tochtportaal & wasruimte en toilet
Grenzend aan het loungegedeelte is een portaal toegankelijk van waaruit u het toilet kan betreden maar eveneens een zeer fijne en praktische wasruimte voorzien van vaste wastafel in mooi meubel en de witgoedaansluitingen.
Serre
De serre is een sfeervolle uitbreiding van de woning, voorzien van een mobile buitenkeuken, mooie terras tegelvloer, warmtelampen, verlichting en veel lichtinval. Een ideale plek om te genieten van buitengevoel met het comfort van binnen.
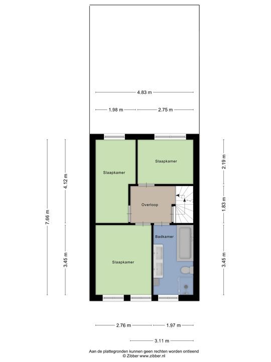
1E VERDIEPING
De overloop biedt toegang tot drie slaapkamers en de badkamer. De overloop en slaapkamers aan de achterzijde zijn voorzien van een eikenhouten vloer met vloerverwarming, terwijl de slaapkamer aan de voorzijde is afgewerkt met laminaat en airconditioning. Alle slaapkamers zijn strak afgewerkt met gladde wanden en plafonds en voorzien van rolluiken. In de slaapkamer aan de voorzijde is tevens de cv installatie keurig weggewerkt in een vaste kast.
Badkamer
De moderne, volledig betegelde badkamer beschikt over een royaal ligbad met whirlpoolfunctie, dubbele wastafel in een fraai meubelombouw met fijne opbergruimte uitgerust met een spiegelkast met opbergruimte, toilet en een inloopdouche met een luxe sunshower en design doucheconsole met massagedouchekoppen. De vloerverwarming draagt evenals een raampartij bij aan een luxe en comfortabele badkamer.
2E VERDIEPING
Via een vaste trap bereikt u de zeer ruime, verhoogde zolderetage voorzien van grote dakkapellen aan weerszijde van de kamer. Airconditioning, inbouwspots, rolluiken en een mooie eikenhouten vloer voorzien van vloerverwarming maken deze masterbedroom tot een zeer prettige slaapkamer. De strak gestuukte wanden en plafond die ook voorzien is van inbouwverlichting maken deze ruimte compleet.
Tuin
De zonovergoten achtertuin is gelegen op het zonnige westen en speels ingericht met een looppad naar het geïsoleerde tuinhuis, voorzien van elektra, tuinverlichting en een wateraansluiting. Daarnaast is er een gazon, borders met beplanting, een speeltoestel en een houten berging met elektra. De tuin beschikt bovendien over een sproei-installatie, waardoor deze altijd fraai onderhouden kan worden.
Algemene kenmerken:
- Moderne keuken;
- Airconditioning 3x;
- Gerenoveerde trappen;
- Kunststof kozijnen 1e etage;
- Elke woonlaag voorzien van vloerverwarming;
- Fraaie terrasoverkapping met glazen schuifpuien;
- Woning volledig gestukadoord;
- Sfeervolle houtkachel;
- Gemoderniseerde badkamer met luxe sunshower;
- Keurig aangelegde tuin;
- Uitstekend onderhouden;
- Geïsoleerde hobbyruimte / tuinberging met wastafel.
Kortom: wonen aan de Kievitstraat betekent wonen in een rustige en groene woonwijk, met het gemak van alle voorzieningen binnen handbereik. Een heerlijke plek waar rust, ruimte en bereikbaarheid perfect samenkomen.
Wilt u weten wat de verkoopmogelijkheden van uw eigen woning zijn? Neem gerust eens contact met ons op voor een vrijblijvend verkoopadvies.
Kopers opgelet: Bij woningen ouder dan 40 jaar wordt er standaard een ouderdomsclausule in de koopakte opgenomen!
Verkopers verlangen een waarborgsom/bankgarantie ter grootte van 10% van de koopsom.
Ons kantoor besteedt de uiterste zorg aan de betrouwbaarheid en actualiteit van de gegevens in de door ons samengestelde verkoopbrochure. Onjuistheden en onvolledigheden kunnen echter voorkomen. Aan de door ons gepresenteerde gegevens waaronder de teksten en plattegronden kunnen geen rechten worden ontleend. Twijfelt u aan de juistheid van de gegevens, vraag dan hoe deze zijn verkregen of kom nog een keer kijken. Probeer te allen tijde alle voor u relevante informatie vooraf te verkrijgen.
English Version
This property is offered for sale by Van der Duim Real Estate
Are you looking for a lovely mid-terrace house in a pleasant, family-friendly location in Geldrop? This property could be the one for you!
LOCATION
Kievitsstraat 19 is situated in a quiet, green residential street with only local traffic, in the popular Braakhuizen-Noord district of Geldrop. The neighbourhood is known for its pleasant living environment, family-friendly character and convenient access to all amenities. Here you enjoy a peaceful setting with plenty of space, while the vibrant centre of Geldrop is only a few minutes away.
Within easy reach you will find everyday amenities such as supermarkets, primary schools, sports clubs and local shops. There are also various parks and playgrounds in the area — ideal for families or anyone who enjoys a green environment. The centre of Geldrop is within cycling distance and offers a wide range of shops, cosy cafés and cultural facilities. Geldrop train station is close by, making Eindhoven and other nearby towns quickly accessible. The neighbourhood is well connected via the A67 and Nuenenseweg, making it an excellent location for commuters and locals alike.
LAYOUT
On arrival you enter the quiet, child-friendly street where parking directly in front of the house is straightforward. The well-kept front garden and characteristic entrance provide a warm welcome.
Entrance & Hall
You are welcomed into a bright hall with tiled floor and underfloor heating, meter cupboard and staircase to the first floor. From the hall a door leads to the living room, creating a pleasant flowing layout.
Living Room
The living room features a modern tiled floor with underfloor heating, smooth plastered walls and ceilings fitted with recessed spotlights. A large window lets in abundant natural light, creating a bright and pleasant atmosphere. The living room is elegantly divided from the kitchen by a stylish breakfast bar and also connects to a cosy lounge area where an atmospheric wood-burning stove completes the scene. Air conditioning provides extra comfort on very warm — and also on very cold — days.
Kitchen
The kitchen is located at the rear and has an L-shaped layout combined with a wall unit. This modern kitchen includes, among other things, an American-style fridge, oven, microwave, an extra-large tiled work surface, dishwasher, sink with mixer tap including boiling-water function, and a 4-burner gas hob with extractor. There is ample storage space thanks to numerous base and wall units. A roof light brings additional daylight into the kitchen and a side-windowed door gives access to the attached conservatory and the garden.
Vestibule, laundry room & toilet
Adjacent to the lounge area there is a vestibule providing access to the toilet and to a very practical laundry room, fitted with a fixed washbasin in a stylish cabinet and connections for appliances.
Conservatory
The conservatory is a charming extension of the house, equipped with a mobile outdoor kitchen, attractive terrace tiles, heat lamps, lighting and abundant daylight — an ideal spot to enjoy an outdoor feeling with the comfort of being indoors.
FIRST FLOOR
The landing provides access to three bedrooms and the bathroom. The landing and the rear bedrooms have oak flooring with underfloor heating, while the front bedroom is finished with laminate and has air conditioning. All bedrooms have smooth plastered walls and ceilings and are fitted with roller shutters. The central heating installation is neatly housed in a fixed cupboard in the front bedroom.
Bathroom
The modern, fully tiled bathroom features a generous bathtub with whirlpool, a double washbasin set in an attractive vanity unit with good storage and a mirrored cabinet, a toilet and a walk-in shower with a luxurious sunshower and massage shower heads. Underfloor heating and a window contribute to a luxurious and comfortable bathroom.
SECOND FLOOR
A fixed staircase leads to the very spacious, raised attic floor which has large dormer windows on both sides. Air conditioning, recessed spotlights, roller shutters and a beautiful oak floor with underfloor heating make this master bedroom a very pleasant space. The smooth plastered walls and ceiling, also fitted with recessed lighting, complete the room.
GARDEN
The sun-drenched rear garden faces west and is playfully laid out with a path to the insulated garden house, which is equipped with electricity, garden lighting and a water connection. There is also a lawn, planted borders, a play structure and a wooden storage shed with electricity. The garden also benefits from an irrigation system so it can be kept looking neat with ease.
GENERAL FEATURES
* Modern kitchen;
* Air conditioning (3x);
* Renovated staircases;
* UPVC window frames on the 1st floor;
* Underfloor heating on every level;
* Attractive terrace covering with glass sliding doors;
* Entire house plastered to a high standard;
* Atmosphere-creating wood burner;
* Modernised bathroom with luxury sunshower;
* Neatly landscaped garden;
* Exceptionally well maintained;
* Insulated hobby room / garden shed with sink.
In short: living on Kievitsstraat means living in a quiet and green neighbourhood with all amenities within easy reach — a lovely place where tranquillity, space and accessibility come together perfectly.
Would you like to know the sales potential of your own property? Please contact us for a free, no-obligation sales consultation.
Buyers, please note: For properties older than 40 years an age clause is standardly included in the purchase contract.





