Deze woning wordt te koop aangeboden via Van der Duim makelaardij
Bent u op zoek naar een royale, speels ingedeelde, nieuwe (energiezuinige) woning, met 4 slaapkamers, balkonterras, privé parkeerplaats en een zonovergoten tuin?
Dan is deze woning wellicht iets voor u!
OMGEVING
Arcostraat 32 is gelegen in een rustige en gezellige straat in Helmond in deelplan Suytkade. Deze wijk staat bekend om haar vriendelijke uitstraling, groene lanen en centrale ligging ten opzichte van het bruisende stadscentrum van Helmond. Hier woont u in een prettige, kindvriendelijke omgeving met een mix van karakteristieke woningen en modern wooncomfort. Aan de achterzijde van de woning heeft u een fantastisch en vrij uitzicht op het water.
In de directe omgeving vindt u allerlei voorzieningen op loop- en fietsafstand. Supermarkten, scholen, sportverenigingen, speeltuintjes en buurtwinkels op steenworp afstand. Ook het gezellige centrum van Helmond, met een divers aanbod aan winkels, restaurants en cafés, ligt slechts enkele minuten verderop. Voor natuurliefhebbers zijn er volop mogelijkheden om te wandelen of te fietsen in het o.a. nabijgelegen Warandepark of langs de groene randen van Helmond.
De bereikbaarheid is uitstekend: via de nabijgelegen N270 en N279 bent u snel in Eindhoven, Deurne of andere omliggende plaatsen. Ook het openbaar vervoer is goed geregeld, met bushaltes en treinstation Helmond op korte afstand.
INDELING
Bij aankomst valt direct de nette uitstraling van de woning op. U parkeert uw auto comfortabel op uw eigen, brede privé parkeerplaats, direct naast de woning. Via de fraai aangelegde tuin en een sfeervolle terrasoverkapping bereikt u de entree van de woning. Onder het overdekte terras treft u een heerlijke plek waar buiten en binnen al op natuurlijke wijze in elkaar overlopen.
Entree & Hal
De hal biedt toegang tot het moderne gastentoilet met fonteintje, de garderobe, de meterkast en de loopdeur naar de keuken. Alles straalt hier verzorging en eigentijdse afwerking uit, wat direct een voorproefje geeft van de rest van de woning.
Keuken
U komt binnen in een schitterende woonruimte die is uitgerust met moderne keuken. De keukeninrichting is geplaatst in een eiland- en wandopstelling. Het eiland is niet alleen functioneel, maar ook een gezellige ontmoetingsplek met ruimte voor twee barkrukken. De keuken is onder meer uitgerust met een inductiekookplaat met geïntegreerde afzuiging, een grote koelkast met vriesvak, combi-oven/magnetron, vaatwasser, spoelbak met mengkraan en kokend waterfunctie. Brede en diepe opberglades makende de keuken compleet.
Door de openslaande tuindeuren komt er veel natuurlijk licht naar binnen en heeft u direct toegang tot het overdekte terras – ideaal voor lange zomeravonden of een ontspannen ontbijtje in de ochtendzon.
Woonkamer
De woonkamer staat in open verbinding met de keuken. De visgraat gelegde tegelvloer is voorzien van vloerverwarming en vloerkoeling. De strakke afwerking van wanden en plafond zien er bijzonder stijlvol uit. Een elektrische haard zorgt voor extra sfeer en warmte, terwijl de grote glaspartijen aan de achterzijde - die een fantastisch uitzicht hebben op het water - zorgen voor een aangenaam lichte en open uitstraling. Het is een heerlijke ruimte om te ontspannen, te genieten en samen te zijn.
Souterrain
Via een vaste trap bereikt u het verrassend ruime souterrain (voorheen de woonkamer) die eveneens volledig is afgewerkt met een visgraat tegelvloer met vloerverwarming en vloerkoeling. Deze ruimte is ingericht als een comfortabele lounge met een moderne bar en bijhorende koelingen – ideaal voor gezellige avonden met familie en vrienden.
Ook in deze ruimte zorgen grote glaspartijen voor prettig daglicht en een prachtig uitzicht op het water en dankzij de openslaande deuren naar frans balkon, heeft u meer dan voldoende ventilatiemogelijkheden.
Op deze etage is er een aparte, ruime berging waarin u tevens de aansluitingen voor uw witgoed aantreft. Voorts bevinden zich hier eveneens de warmtepompinstallatie, de verdeler van de vloerverwarming, de WTW-installatie en heeft u nog extra opbergruimte.
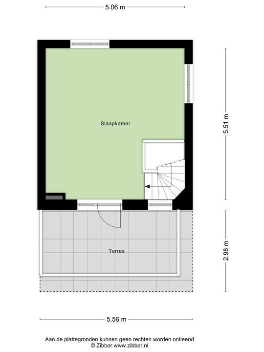
1e VERDIEPING
Vanaf de overloop op de eerste etage heeft u toegang tot drie slaapvertrekken en de badkamer.
Alle slaapkamers zijn voorzien van vloerverwarming en vloerkoeling, een fraaie PVC-vloer, strak afgewerkte wanden en plafonds en een mooi uitzicht en veel natuurlijk lichtinval dankzij de royale raampartijen.
Badkamer
De moderne badkamer is volledig betegeld en van alle gemakken voorzien. U vindt hier een ligbad met extra handdouche, een aparte inloopdoucheruimte met stortdouche, een wastafel in en stijlvol meubelombouw en een toilet. De neutrale, moderne afwerking zorgt voor een tijdloze uitstraling en een gevoel van luxe.
2e VERDIEPING
Op de tweede verdieping bevindt zich de master bedroom. Een prachtige, lichte ruimte met toegang tot een zeer ruim dakterras. Vanaf hier geniet u nagenoeg een 360-graden uitzicht over de stad Helmond. De afwerking is modern met onder andere strakke wanden en plafond, een het dakterras biedt een unieke plek om te ontspannen of te genieten van een zomerse zonsondergang.
Tuin & Buitenruimte
De onderhoudsvriendelijke tuin biedt veel privacy en is aan de voorzijde van de woning gelegen. Voorzien van onder meer fraaie terrastegels, een draingoot en een houten berging met elektra en verlichting. Dankzij de ruime veranda kunt u hier het hele jaar door buiten genieten. Er is bovendien een mogelijkheid voor het plaatsen van een elektrische laadpaal.
Bijzonderheden
- Moderne, instapklare woning met hoogwaardige afwerking;
- Eigen privéparkeerplaats direct naast de woning;
- Souterrain met lounge en bar;
- Voorzien van 2 zonnepanelen;
- Vloerverwarming EN vloerkoeling op alle woonverdiepingen;
- Aardwarmtepomp- en WTW-installatie;
- Energielabel A++ (lage energielasten);
- Ruim dakterras met panoramisch uitzicht;
- Kindvriendelijke, rustige woonomgeving.
Kortom: Deze woning aan de Arcostraat 32 biedt alles wat u van modern wonen mag verwachten: luxe afwerking, energiezuinige installaties, vloerverwarming, een stijlvolle keuken met kookeiland, een bar in het souterrain en een adembenemend dakterras. Hier geniet u dagelijks van kwaliteit, comfort en design – een woning die écht het verschil maakt.
Wilt u weten wat de verkoopmogelijkheden van uw eigen woning zijn? Neem gerust eens contact met ons op voor een vrijblijvend verkoopadvies.
Verkopers verlangen een waarborgsom/bankgarantie ter grootte van 10% van de koopsom.
Ons kantoor besteedt de uiterste zorg aan de betrouwbaarheid en actualiteit van de gegevens in de door ons samengestelde verkoopbrochure. Onjuistheden en onvolledigheden kunnen echter voorkomen. Aan de door ons gepresenteerde gegevens waaronder de teksten en plattegronden kunnen geen rechten worden ontleend. Twijfelt u aan de juistheid van de gegevens, vraag dan hoe deze zijn verkregen of kom nog een keer kijken. Probeer te allen tijde alle voor u relevante informatie vooraf te verkrijgen.
English Version
This property is offered for sale by Van der Duim Makelaardij
Are you looking for a spacious, playfully designed, modern home with 4 bedrooms, a balcony terrace, private parking space and a sun-drenched garden? Then this property may be exactly what you’re looking for!
SURROUNDINGS
Arcostraat 32 is located in a quiet and pleasant residential street in Helmond. This neighbourhood is known for its friendly character, green avenues and central location close to the vibrant city centre. Here you live in a comfortable, family-friendly environment with a mix of charming houses and modern living comfort. At the rear of the property, you enjoy a fantastic and unobstructed view of the water.
In the immediate vicinity, you will find all kinds of amenities within walking or cycling distance: supermarkets, schools, sports clubs, playgrounds and local shops are all just a stone’s throw away. The lively city centre of Helmond—with a diverse range of shops, restaurants and cafés—is only a few minutes further. For nature lovers, there are plenty of walking and cycling opportunities in the nearby Warande Park and the green outskirts of Helmond.
Accessibility is excellent: the nearby N270 and N279 provide quick connections to Eindhoven, Deurne and surrounding towns. Public transport is also well organised, with bus stops and Helmond train station close by.
LAYOUT
Upon arrival, the neat and well-maintained appearance of the property immediately stands out. You can park your car comfortably on your own wide private parking space, directly beside the house. Via the beautifully landscaped garden and the atmospheric covered terrace, you reach the entrance of the property. The covered terrace creates a wonderful place where indoor and outdoor living naturally flow into each other.
Entrance & Hallway
The hall provides access to the modern guest toilet with washbasin, the cloakroom, the meter cupboard and the door to the kitchen. Everything here exudes care and contemporary finishing, offering a first taste of what the rest of the house has to offer.
Kitchen
You enter a stunning living area equipped with a modern kitchen. The kitchen is arranged with both an island and a wall unit. The island is not only functional but also a cosy meeting point with space for two bar stools. The kitchen includes an induction hob with integrated extractor, a large fridge with freezer compartment, combination oven/microwave, dishwasher, sink with mixer tap and boiling-water function. Wide and deep storage drawers complete the kitchen.
French doors allow plenty of natural light inside and provide direct access to the covered terrace—ideal for long summer evenings or a relaxing breakfast in the morning sun.
Living Room
The living room flows seamlessly into the kitchen. The herringbone-pattern tiled floor is equipped with underfloor heating. The sleek finish of the walls and ceiling gives the room a particularly stylish appearance. An electric fireplace adds extra warmth and ambience, while the large windows at the rear—with a fantastic view of the water—create a wonderfully light and open atmosphere. It is a perfect space for relaxing, enjoying and spending time together.
Souterrain (Basement Level)
A staircase leads to the surprisingly spacious souterrain (formerly the living room), also fully finished with a herringbone tiled floor and underfloor heating. This area is arranged as a comfortable lounge with a modern bar and matching cooling units—ideal for enjoyable evenings with family and friends.
Large windows provide plenty of daylight and a beautiful view of the water, and the tilt-and-turn windows provide excellent ventilation.
On this level you will also find a separate, spacious storage room with connections for laundry appliances. In addition, this is where the heat pump, underfloor heating distribution unit, heat recovery system (WTW) and extra storage space are located.
FIRST FLOOR
From the landing on the first floor, you access three bedrooms and the bathroom.
All bedrooms are equipped with underfloor heating, an attractive PVC floor, smooth wall and ceiling finishes, as well as large windows offering pleasant views and abundant natural light.
Bathroom
The modern bathroom is fully tiled and equipped with every convenience. It features a bathtub with hand shower, a separate walk-in shower with rain shower, a washbasin with stylish vanity unit, and a toilet. The neutral, modern design creates a timeless and luxurious look.
SECOND FLOOR
The second floor houses the master bedroom—a beautiful, bright space with access to a very spacious rooftop terrace. From here you enjoy an almost 360-degree view over the city of Helmond. The finishing is modern, with smooth walls and ceiling, and the rooftop terrace offers a unique place to unwind or enjoy a summer sunset.
Garden & Outdoor Space
The garden is located at the front of the house and is designed for low maintenance. It features attractive terrace tiles, a drainage channel, and a wooden storage shed with electricity and lighting. Thanks to the covered veranda, you can enjoy outdoor living all year round. There is also the possibility to install an electric car charging station.
Highlights
* Modern, move-in-ready home with high-quality finishes
* Private parking space directly beside the property
* Souterrain with lounge and bar
* Underfloor heating on all living levels
* Geothermal heat pump and heat recovery system
* Energy label A++
* Spacious rooftop terrace with panoramic views
* Family-friendly, quiet residential environment
In short: This property at Arcostraat 32 offers everything you may expect from modern living—luxury finishes, energy-efficient systems, underfloor heating, a stylish kitchen with island, a bar in the souterrain, and a breathtaking rooftop terrace. Here you enjoy quality, comfort and design every single day—this is a home that truly stands out.
Would you like to know the sales possibilities for your own home? Feel free to contact us for a non-binding sales consultation.
The sellers require a security deposit/bank guarantee of 10% of the purchase price.
Our office takes the utmost care in ensuring the reliability and accuracy of the information in our sales brochure. However, inaccuracies and omissions may occur. No rights can be derived from the information provided, including texts and floor plans. If you have any doubts about the accuracy of the details, please ask how they were obtained or schedule another viewing. Always ensure you obtain all information relevant to you in advance.






