De woning met bedrijfsruimte wordt u te koop aangeboden door Van der Duim Makelaardij.
Bent u op zoek naar een woning die wonen en werken perfect combineert?
Dan is deze vrijstaande woning (huisnummer 29a) met bedrijfsruimte (huisnummer 29) en aparte studio dé kans! Gelegen in hartje Stiphout biedt deze woning tal van mogelijkheden.
De woning beschikt over een bedrijfsruimte, ideaal voor ondernemers of als extra opslag-/werkruimte. Daarnaast biedt de aparte studio mogelijkheden voor bijvoorbeeld een kantoor aan huis, gastenverblijf of mantelzorg.
Dankzij de flexibele indeling en diverse ruimtes kunt u deze woning helemaal afstemmen op uw eigen woon- en werkwensen.
Ook zet deze woning de zon aan het werk: met maar liefst 36 zonnepanelen bent u klaar voor een duurzame en voordelige toekomst!
OMGEVING
Stiphout is een mooi en ruim stadsdeel van Helmond en ligt op steenworp afstand van Eindhoven. Een fraai "groen" stadsdeel waarin het wijds wonen is, grenzend aan een groene en bosrijke omgeving. De woning is op korte afstand van de dorpskern gelegen waar u diverse voorzieningen treft, zoals een ruim winkelaanbod, sportfaciliteiten en basisscholen. In de "Stiphoutse bossen" kunt u heerlijk wandelen, maar ook het prachtige kasteel Croy en natuur-, dieren- en wandelpark "De Warande" grenzen aan Stiphout.
Het NS-station Helmond Centraal en Mierlo-Hout bevinden zich op 15 minuten fietsafstand en diverse uitvalswegen naar Helmond, Nuenen en Eindhoven zijn nabij.
INDELING
Via de oprit met eigen parkeerplaats heeft u toegang naar de entree en de bedrijfsruimte.
Entree
Via de hal bereikt u het gastentoilet met wastafel en fonteintje, meterkast, trapopgang naar 1e verdieping en loopdeur naar de woonkamer.
Woonkamer
De ruime lichte woonkamer geniet door de grote erker aan de voorzijde en diverse raampartijen van veel natuurlijk lichtinval. In het midden is een gashaard geplaatst voor extra warmte en sfeer. Er ligt een houtenvloer, wanden en plafond zijn in een lichte kleurstelling uitgevoerd. aan de achterzijde heeft u via openslaande tuindeuren toegang naar de tuin.
Tuin
De achtertuin is met liefde aangelegd en is voorzien van een houten terrasoverkapping met daaronder een zitgedeelte. Verder is de tuin onderhoudsvriendelijk aangelegd met diverse borders en beplanting.
De tuin heeft een ideale ligging op het zuidoosten zodat u de gehele dag kunt genieten van de zon.
Keuken
De keuken is in een U-opstelling geplaatst met veel werkruimte, natuursteen werkblad en de volgende apparatuur, te weten;
- 5-pits gaskookplaat;
- RVS afzuigkap;
- Spoelbak met mengkraan;
- Vaatwasser;
- Combi oven/magnetron;
- Koel- en vriescombinatie.
Er zijn voldoende onder- en bovenkasten voor extra bergruimte en veel natuurlijk lichtinval door de raampartijen rondom.
Bijkeuken
In de bijkeuken bevinden zich de witgoedaansluitingen en een tweede garderobe. Via een loopdeur bereikt u een kantoorruimte en is er een loopdeur nar de tuin.
Kantoor
Op dit moment is deze ruimte ingericht als zijnde kantoorruimte doch eveneens als speel- hobbykamer te gebruiken. Ook vanuit deze ruimte is de tuin te betreden.
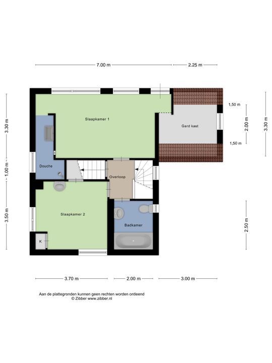
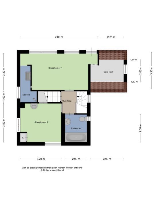
1e VERDIEPING
Via de trapopgang in de hal bereikt u de overloop van de hoofdwoning gelegen op de 1e verdieping. Deze biedt toegang naar 2 zeer riante slaapkamers en een separate badkamer.
Slaapkamer I met badkamer en suite
Deze royale ouderslaapkamer is ruim van opzet en voorzien van een laminaat vloer. De wanden en plafond zijn voorzien van stukwerk. Aan de ene zijde van de kamer is de ensuite badkamer gelegen. Hier is een inloopdouche gemaakt met een vaste wastafel in praktisch meubelombouw. Aan de andere zijde van de slaapkamer is een fijne inloop kleedruimte gecreëerd.
Slaapkamer II
Deze slaapkamer is voorzien van een laminaatvloer, wastafel, inbouwkast en diverse raampartijen waardoor er veel natuurlijk lichtinval binnen komt.
Badkamer II
De 2e badkamer op deze etage is voorzien van een ligbad, toilet, wastafel en verder volledig betegeld en in een lichte kleurstelling uitgevoerd. Een raampartij biedt prettig daglicht en extra ventilatiemogelijkheden.
2e VERDIEPING
Via een vaste trap bereikt u de overloop van de 2e verdieping. Deze biedt toegang naar Slaapkamer III en een hobbykamer met dakraam. Ook treft u hier een combinatieruimte voor uw CV-installatie en extra bergruimte.
------------------------------------------------------------------------------------------------------------------------------------------------------------------
KANTOORRUIMTE / BEDRIJFSRUIMTE (huisnummer 29)
Kantoor
Via de oprit aan de voorzijde heeft u toegang naar de entree van uw multifunctionele ruimte.
Deze ruimte kunt u voor verschillende doeleinden gebruiken. De vloer is belegd met PVC, wanden en plafond zijn voorzien van stukwerk.
Bedrijfsruimte
Ontdek de mogelijkheden van deze multifunctionele ruimte!
Ruim, licht, veelzijdig en verschillende ruimtes die volledig naar uw wensen kunnen worden ingericht. Of u nu droomt van een rustige werkplek, een inspirerende hobbyruimte of een speelparadijs voor kinderen.
Met diverse ramen geniet u van een overvloed aan natuurlijk daglicht, wat zorgt voor een aangename en productieve sfeer.
Garage
Via een loopdeur heeft u toegang naar de garage/opslag ruimte. Deze is voorzien van een praktische roldeur, ideaal voor laden en lossen. Via de oprit aan de zijgevel kunt u deze ruimte bereiken, hierdoor is de ruimte ook geschikt als werkplaats.
Daarnaast beschikt u over een aparte toegang naar een houten tuinhuis, gelegen naast de oprit. Dit biedt mogelijkheden voor het stallen van fietsen, tuingereedschap of extra opslag.
------------------------------------------------------------------------------------------------------------------------------------------------------------------
COMPACTE STUDIO MET EIGEN VOORZIENINGEN
Een unieke toevoeging aan deze woning is de praktische studio die via het bedrijfsgedeelte bereikbaar is. Deze zelfstandige woonruimte zou ideaal zijn als gastenverblijf, mantelzorgwoning, verhuurruimte of een privé plek om te ontspannen.
De studio beschikt over een open woonkamer met open keuken, waar u dankzij de functionele indeling gemakkelijk kunt koken en ontspannen. De keuken is voorzien van de belangrijkste apparatuur, te weten:
- 5-pits gaskookplaat;
- afzuigkap;
- 1,5 spoelbak met mengkraan;
- Koelkast;
- Combi oven/magnetron;
- vaatwasser.
Badkamer
De moderne badkamer is voorzien van een wastafel, designradiator, toilet en inloopdouche.
De slaapkamer is klein, maar biedt voldoende ruimte voor een bed.
KORTOM: LAAT UW CREATIVITEIT DE VRIJE LOOP EN ONTDEK HOE DEZE WONING UW WOON- EN WERKDROMEN WERKELIJK KAN MAKEN!
Verkopers verlangen een waarborgsom/bankgarantie ter grootte van 10% van de koopsom.
Wilt u weten wat de verkoopmogelijkheden van uw eigen woning zijn? Neem gerust eens contact met ons op voor een vrijblijvend verkoopadvies.
Ons kantoor besteedt de uiterste zorg aan de betrouwbaarheid en actualiteit van de gegevens in de door ons samengestelde verkoopbrochure. Onjuistheden en onvolledigheden kunnen echter voorkomen. Aan de door ons gepresenteerde gegevens waaronder de teksten en plattegronden kunnen geen rechten worden ontleend. Twijfelt u aan de juistheid van de gegevens, vraag dan hoe deze zijn verkregen of kom nog een keer kijken. Probeer te allen tijde alle voor u relevante informatie vooraf te verkrijgen.
ENGLISH VERSION
The property with business space is being offered for sale by Van der Duim Makelaardij.
Are you looking for a home that perfectly combines living and working?
Then this detached house (house number 29a) with business space (house number 29) and a separate studio is the opportunity you've been waiting for! Located in the heart of Stiphout, this property offers numerous possibilities.
The house features a business space, ideal for entrepreneurs or as additional storage or workspace. Additionally, the separate studio offers options for a home office, guest accommodation, or care arrangement.
Thanks to the flexible layout and various spaces, you can tailor this property entirely to your own living and working needs.
Moreover, this house is designed for a sustainable and cost-efficient future, with no less than 36 solar panels harnessing the power of the sun!
SURROUNDINGS
Stiphout is a beautiful and spacious district of Helmond, located just a stone's throw from Eindhoven. It is a charming "green" area offering wide-open living spaces adjacent to a lush, forested environment.
The property is located a short distance from the village center, where you will find various amenities, including a wide range of shops, sports facilities, and primary schools. In the "Stiphoutse Bossen," you can enjoy scenic walks, while the beautiful Croy Castle and nature, animal, and walking park "De Warande" are also nearby.
The Helmond Central and Mierlo-Hout train stations are within 15 minutes by bike, and there are excellent road connections to Helmond, Nuenen, and Eindhoven.
LAYOUT
Driveway and Entrance
The property features a private driveway providing access to the entrance and the business space.
Entrance
From the hallway, you can access the guest toilet with a washbasin, the meter cupboard, the staircase to the first floor, and the door to the living room.
Living Room
The spacious and bright living room benefits from large bay windows at the front and multiple windows, allowing plenty of natural light to flow in. A gas fireplace is centrally positioned, adding warmth and ambiance. The living room features wooden flooring, while the walls and ceiling are finished in light tones. At the rear, French doors open onto the garden.
Garden
The lovingly landscaped backyard includes a wooden patio with a covered seating area. The garden is low-maintenance, with various borders and plantings.
The garden faces southeast, allowing you to enjoy the sun throughout the day.
Kitchen
The U-shaped kitchen offers ample workspace, a natural stone countertop, and the following appliances:
5-burner gas hob;
Stainless steel extractor hood;
Sink with mixer tap;
Dishwasher;
Combination oven/microwave;
Fridge-freezer combination.
There are plenty of lower and upper cabinets for additional storage, and the surrounding windows provide natural light.
Utility Room
The utility room includes laundry connections and a second wardrobe. A door leads to a home office, and another provides access to the garden.
Office
Currently set up as an office, this space can also be used as a playroom or hobby room. The garden is also accessible from here.
FIRST FLOOR
Landing
The staircase from the hallway leads to the main house landing on the first floor, providing access to two very spacious bedrooms and a separate bathroom.
Bedroom I with Ensuite Bathroom
This generous master bedroom features laminate flooring and plastered walls and ceiling. On one side, you’ll find the ensuite bathroom with a walk-in shower and a fixed washbasin in a practical cabinet. On the other side, there’s a convenient walk-in closet.
Bedroom II
This bedroom includes laminate flooring, a washbasin, a built-in wardrobe, and multiple windows, allowing abundant natural light.
Bathroom II
The second bathroom on this floor features a bathtub, toilet, and washbasin. It is fully tiled in light tones, and a window provides daylight and ventilation.
SECOND FLOOR
A fixed staircase leads to the second-floor landing, granting access to Bedroom III, a hobby room with a skylight, and a combined space for the heating system and additional storage.
OFFICE/BUSINESS SPACE (House Number 29)
Office
The driveway at the front provides access to the entrance of this multifunctional space.
This area can serve various purposes. The floor is finished with PVC, while the walls and ceiling are plastered.
Business Space
Discover the possibilities of this versatile area!
Bright, spacious, and flexible, the space can be customized to meet your needs, whether you dream of a quiet workspace, an inspiring hobby area, or a children's playroom.
With numerous windows, the space is filled with natural light, creating a pleasant and productive atmosphere.
Garage
A side door leads to the garage/storage area, equipped with a practical rolling door—ideal for loading and unloading. The driveway at the side of the property ensures easy access, making the space suitable for use as a workshop.
Additionally, there is a separate wooden garden shed next to the driveway, perfect for storing bicycles, gardening tools, or extra items.
COMPACT STUDIO WITH PRIVATE FACILITIES
A unique addition to this property is the practical studio, accessible via the business section. This self-contained living space is ideal as a guesthouse, care residence, rental unit, or private retreat.
Studio Layout
The open-plan living room and kitchen provide a functional layout for cooking and relaxing. The kitchen includes essential appliances, such as:
5-burner gas hob;
Extractor hood;
1.5 sink with mixer tap;
Refrigerator;
Combination oven/microwave;
Dishwasher.
Bathroom
The modern bathroom features a washbasin, designer radiator, toilet, and walk-in shower.
The bedroom is small but offers enough space for a bed.
IN SUMMARY
Unleash your creativity and discover how this property can turn your living and working dreams into reality!
Sellers require a deposit/bank guarantee amounting to 10% of the purchase price.
Would you like to know the selling possibilities for your property? Feel free to contact us for a non-binding sales consultation.
Our office takes the utmost care in ensuring the reliability and accuracy of the information provided in this sales brochure. However, inaccuracies or omissions may occur. No rights can be derived from the information presented, including the texts and floor plans. If you have any doubts about the accuracy of the information, ask for clarification or schedule a second viewing. Always obtain all relevant information in advance.





