Deze woning wordt te koop aangeboden door Van der Duim makelaardij
ALGEMEEN
De volledig gemoderniseerde tweekapper aan de Luitenakker 19 is gelegen in de rustige en kindvriendelijke woonwijk Luitenakker, in Lierop (gemeente Someren). Een ideale plek voor wie graag landelijk woont, zonder allerminst afgelegen te zijn. Omgeven door prachtige natuurgebieden zoals de Lieropsche Heide, de Strabrechtse Heide en andere bosrijke zones. Perfect voor wandelen, fietsen of genieten van de rust buiten.
Op fietsafstand zijn er basisscholen, zoals basisschool ’t Rendal, maar ook kinderopvang op steenworp afstand.
Voor de dagelijkse boodschappen een supermarkt in de buurt. Andere winkels, slagerijen en bakkers zijn op korte afstand bereikbaar.
Lierop is gunstig gelegen ten opzichte van grotere plaatsen, wat zorgt voor goede verbindingen voor werk, shoppen en recreatie. Via lokale wegen bereik je snel de snelweg A67 en het openbaar vervoer is in de buurt aanwezig.
Deze uitgebouwde, modern uitgevoerde tweekapper ligt op een fijne, rustige woonlocatie met een fraai aangelegde tuin en eigen oprit. Een woning die niet alleen ruimte en sfeer biedt, maar ook volledig is gemoderniseerd met oog voor kwaliteit en comfort. van 2021 tot en met 203 is werkelijk bijna alles aangepakt: een nieuwe vloer met vloerverwarming op de begane grond, een moderne keuken, een luxe badkamer en een nieuw toilet. Daarnaast is de woning voorzien van kunststof kozijnen met triple glas, nieuwe zonnepanelen, een uitgebreide meterkast en gerenoveerde trappen naar de eerste en tweede verdieping. Een recent aangelegde voor-en achtertuin is een heerlijke plek om te ontspannen en beschikt over voorbereidingen voor een beregeningsinstallatie, elektriciteit, fijne tuinberging en sfeervolle verlichting. Het overdekte terras maakt het buitenleven compleet.
Kortom: een instapklare woning waar je zonder klussen kunt genieten van modern wooncomfort op een prachtige, rustige plek in Lierop.
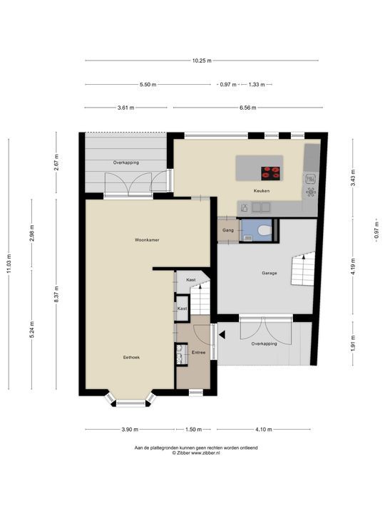
Indeling:
Begane grond:
Via een een brede oprit bereikt u de overdekte entree van de woning. Voorts een ruime hal met royale garderobe en moderne meterkast. Vanuit de mooie hal toegang tot de moderne woonkamer die is uitgevoerd met glad gestukadoorde wanden en plafonds, zeer praktische, ingebouwde schuifwandkast en een tegelvloer voorzien van vloerverwarming. Middels een schuifpui toegang tot het overdekte terras en de fraai aangelegde tuin.
Een fantastische keukenruimte met o.a. een kookeiland en een riant en in composiet uitgevoerd werkblad. De keukeninrichting is eveneens in een hoekopstelling geplaatst met veel opbergruimte in de onder- en bovenkasten en voorzien van o.a. de volgende apparatuur:
* vaatwasser;
* oven;
* koelkast;
* vriezer;
* inductie kookplaat en een
* afzuigkap.
De fraaie dubbele Buttlersink, de knusse koffiecorner en de riante werkbladen maken deze keuken een genot om in te koken en te verblijven. Vanuit de keuken heeft u toegang tot de tuin en het overdekte terras en middels een tussenportaal bereikt u het gastentoilet en de voormalige garage.
Het separate toilet is bijzonder fraai en modern uitgevoerd en voorzien van een fonteintje en geraffineerd, ingebouwde kast.
De ruime berging (voorheen de garage) is ideaal voor de hobbyist en biedt toegang tot de deels overdekte oprit en middels een vaste trap bereikt u een grote hobby- annex werkkamer. Deze royale werkkamer is voorzien van daglicht in de vorm van een ruim dakraam en biedt veel, extra opbergruimte. Een ideale ruimte voor de hobbyist maar tevens als slaap- of studeerruimte te gebruiken.
1e verdieping:
Vanuit de ruime overloop op de eerste etage biedt een vaste trap toegang tot de tweede etage en heeft u toegang tot een luxe uitgevoerde badkamer en 3 slaapvetrekken.
De slaapkamers zijn ruim en allemaal voorzien van een keurige vloer, gladde stukwerk wanden deels gecombineerd met een luxe wandafwerking.
De luxe en modern uitgevoerde badkamer heeft fijn daglicht door de ruime dakkapel die tevens zorgt voor extra natuurlijke ventilatie. De badkamer is uitgerust met een ruime inloop doucheruimte, duo ligbad met fraaie onderbouwverlichting, dubbele vaste wastafel op luxe plateau en fraaie wandbetegeling en een tweede toilet. Verder maken een toiletkast voor extra opbergruimte en een mechanische ventilatie de badkamer compleet.
2e verdieping:
Middels een vaste trap bereikt u de open zolderkamer die is voorzien van opbergruimte aan weerszijden van de kamer, alsmede een dakraam en de aansluitingen voor uw witgoed. Deze 5e kamer is als slaap- en/of studeerkamer te gebruiken.
Kortom een ideale gezinswoning voor de koper die kiest voor een instapklare woning.
Algemene kenmerken
- Nieuwe keuken en sanitair;
- Vloerverwarming begane grond;
- Energielabel A door o.a. tripple-glas en zonnepanelen;
- Volledig geïsoleerd;
- Zonovergoten achtertuin met veel privacy;
- Privé parkeerplaats op eigen oprit;
- Nabij diverse scholen, sportfaciliteiten, station, speelparken en winkels;
- Aanvaarding kan op korte termijn.
Kortom, zeker een woning die een bezichtiging waard is!
Verkopers verlangen een waarborgsom/bankgarantie ter grootte van 10% van de koopsom.
Wilt u weten wat de verkoopmogelijkheden van uw eigen woning zijn? Neem gerust eens contact met ons op voor een vrijblijvend verkoopadvies.
Ons kantoor besteedt de uiterste zorg aan de betrouwbaarheid en actualiteit van de gegevens in de door ons samengestelde verkoopbrochure. Onjuistheden en onvolledigheden kunnen echter voorkomen. Aan de door ons gepresenteerde gegevens waaronder de teksten en plattegronden kunnen geen rechten worden ontleend. Twijfelt u aan de juistheid van de gegevens, vraag dan hoe deze zijn verkregen of kom nog een keer kijken. Probeer te allen tijde alle voor u relevante informatie vooraf te verkrijgen.
English version
This property is offered for sale by Van der Duim Makelaardij
GENERAL
The fully modernised semi-detached house at Luitenakker 19 is located in the quiet and family-friendly residential area Luitenakker in Lierop (municipality of Someren). An ideal location for those who enjoy a rural lifestyle without feeling isolated. The village is surrounded by beautiful nature reserves such as Lieropsche Heide and Strabrechtse Heide, offering endless opportunities for walking, cycling, and enjoying the peace and greenery.
Within cycling distance you’ll find primary schools such as Basisschool ’t Rendal, and childcare facilities are just a stone’s throw away. For daily groceries there is a supermarket nearby, and other shops, bakeries and butchers are also easily accessible.
Lierop enjoys an excellent location close to larger towns, providing good connections for work, shopping, and leisure. The A67 motorway can be reached within minutes, and public transport is conveniently nearby.
This extended, modern semi-detached home enjoys a quiet residential setting with a beautifully landscaped garden and private driveway. The house not only offers space and atmosphere, but has also been fully modernised with great attention to quality and comfort. From 2021 till 2023, nearly everything was renewed: a new floor with underfloor heating on the ground level, a modern kitchen, a luxurious bathroom, and a new toilet. The house also features maintenance-free uPVC window frames with triple glazing, new solar panels, an upgraded fuse box, and renovated staircases to both the first and second floors.
The recently landscaped garden is a wonderful place to relax, featuring provisions for an irrigation system, outdoor electricity, garden lighting, and a practical storage shed. Also a new front yard and front door. The covered terrace completes the outdoor living experience.
In short: this is a turn-key home where you can move in and enjoy modern comfort without any renovation work — all in a beautiful and peaceful part of Lierop.
Layout
Ground floor
A wide driveway leads to the covered entrance of the house. Inside, a spacious hallway offers plenty of room for a wardrobe and provides access to the modern fuse box. From here you enter the bright living room with smooth plastered walls and ceilings, a practical built-in sliding door wardrobe, and a tiled floor with underfloor heating. Large sliding doors connect the living area to the covered terrace and the beautifully landscaped garden.
The impressive kitchen features a central island with a composite worktop, complemented by an L-shaped arrangement with ample storage space in both upper and lower cabinets. The kitchen is equipped with:
- Dishwasher
- Oven
- Refrigerator
- Freezer
- Induction hob
- Extractor hood
The stylish double butler sink, cosy coffee corner, and generous work surfaces make this kitchen a true pleasure to cook and spend time in. From the kitchen you can access the garden and covered terrace, while a side hallway leads to the guest toilet and the former garage.
The separate toilet is elegantly designed with a wash basin and a cleverly integrated storage cabinet.
The spacious storage room (formerly the garage) is perfect for hobbyists and provides access to the partially covered driveway. A fixed staircase leads to a large hobby or home office room, featuring a skylight and plenty of storage space. This versatile area can also serve as a bedroom or study.
First floor
The generous landing provides access to the second floor via a fixed staircase, as well as to the luxurious bathroom and three bedrooms.
All bedrooms are spacious, featuring neat flooring and smooth plastered walls combined with stylish finishes.
The modern bathroom benefits from natural light through a large dormer window, which also allows for natural ventilation. It is fitted with a walk-in shower, double bathtub with built-in lighting, double washbasin on a luxury countertop, second toilet, and elegant wall tiling. A built-in storage cabinet and mechanical ventilation complete the room.
Second floor
A fixed staircase leads to the open attic room, which offers additional storage space along both sides, a roof window, and connections for your laundry appliances. This fifth room can be used as a bedroom, study, or hobby room.
A perfect family home for anyone looking for a modern, move-in ready property.
Key features
* New kitchen and sanitary fittings (2021)
* Underfloor heating on the ground floor
* Energy label A; tripple glas and solar panels
* Fully insulated
* Sunny and private rear garden
* Private parking on driveway
* Close to schools, sports facilities, train station, playgrounds and shops
Quick completion possible
In short — a property truly worth viewing!
Additional information
The sellers require a deposit or bank guarantee of 10% of the purchase price.
Would you like to know what your own home might be worth? Please feel free to contact us for a no-obligation valuation or sales consultation.
Our office takes the utmost care in ensuring the reliability and accuracy of the information contained in this brochure. However, inaccuracies and omissions may occur. No rights can be derived from the information, texts, or floor plans presented. If you have any doubts about the details, please ask how they were obtained or arrange a second viewing. Always make sure to obtain all information relevant to you in advance.




