Deze woning wordt u aangeboden door Van Der Duim Makelaardij
Bent u op zoek naar een moderne en jonge, instapklare tussenwoning in het geliefde Nuenen-west?
In een rustige, groene en kindvriendelijke woonwijk nabij Eindhoven ligt deze instapklare woning. Met o.a. een energielabel A, 17 zonnepanelen, uitstekende isolatie en hoogwaardige afwerking is dit een toekomstbestendige en energiezuinige woning.
OMGEVING
Dubbe Loop 8 is gelegen in een rustige, groene en ruim opgezette woonwijk in het geliefde Nuenen-west. De straat kenmerkt zich door een prettige, gemoedelijke sfeer met voornamelijk bestemmingsverkeer, wat bijdraagt aan een veilig en ontspannen woonklimaat. Het is een omgeving waar buren elkaar kennen en waar rust en comfort hand in hand gaan.
Op korte afstand bevinden zich diverse voorzieningen, zoals winkels voor de dagelijkse boodschappen, scholen, sportfaciliteiten en horecagelegenheden. Ook het gezellige centrum van Nuenen, met een breed aanbod aan winkels, terrassen en culturele voorzieningen, is eenvoudig en snel bereikbaar.
Daarnaast is de bereikbaarheid uitstekend. Dankzij de gunstige ligging ten opzichte van uitvalswegen zijn Eindhoven, Helmond en omliggende dorpen snel bereikbaar, zowel met de auto als met het openbaar vervoer.
INDELING
Entree
Bij aankomst kunt u uw auto openbaar parkeren in de daarvoor bestemde parkeervakken in de rustige straat. De nette voortuin leidt u naar de entree van de woning.
Entree & hal
U komt binnen in de hal, voorzien van een garderobe, meterkast en een modern gastentoilet met fonteintje. Vanuit de hal bereikt u de trapopgang naar de eerste verdieping en via een loopdeur de woonkamer.
Woonkamer
De woonkamer is aangenaam licht en comfortabel, voorzien van een pvc vloer met vloerverwarming, lichte wanden en een strak afgewerkt plafond met stukwerk. Dankzij de grote glazen achterpui met loopdeur naar de tuin geniet u hier van een overvloed aan natuurlijk licht. De aanwezigheid van airconditioning verhoogt het wooncomfort. In het midden van de woonkamer bevindt zich een praktische trapkast.
Keuken
De open keuken staat in directe verbinding met het eetgedeelte en is uitgevoerd in een praktische L-opstelling met veel werkruimte. Het composiet werkblad en de complete inbouwapparatuur zorgen voor een moderne uitstraling en optimaal gebruiksgemak. De keuken is uitgerust met
- een 4-pits inductiekookplaat met RVS afzuigsysteem;
- koelkast;
- vriezer
- magnetron;
- oven;
- vaatwasser;
- spoelbak met mengkraan.
1E VERDIEPING
De eerste verdieping biedt toegang tot drie slaapkamers en de badkamer.
Slaapkamers
Alle slaapkamers zijn voorzien van een pvc vloer met vloerverwarming, kunststof kozijnen met draai-/kiepramen en genieten van veel natuurlijk licht. De wanden en plafonds zijn strak afgewerkt, wat zorgt voor een rustige en moderne uitstraling.
Badkamer
De volledig betegelde badkamer is compleet ingericht met een ligbad, toilet, wastafel met kastruimte en een inloopdouche.
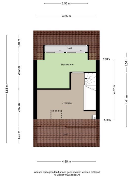
2E VERDIEPING
Via de vaste trap bereikt u de tweede verdieping. De overloop is voorzien van airconditioning en een pvc vloer en biedt toegang tot 1 slaapkamer en een multifunctionele ruimte en de vliering.
Slaapkamer IV
Deze kamer beschikt over een dakkapel met kunststof kozijnen en draai-/kiepraam, strak afgewerkte wanden en plafonds, een pvc vloer en praktische bergruimte achter schuifpanelen.
De kamer is ook uitstekend te gebruiken als speelkamer of thuiskantoor.
Multifunctionele ruimte
Deze kamer is momenteel ingericht als kleedruimte en kantoor en is voorzien van een dakraam, inbouwspots, bergruimte achter schuifpanelen.
Tevens is hier de opstelling van uw cv-installatie en de aansluitingen voor uw witgoed en verdeler van de vloerverwarming.
Vliering
Door slim om te gaan met de ruimte is er op zolder nog een vliering gecreëerd wat zorgt voor nog meer opbergruimte. Deze ruimte is ideaal voor het opbergen van bijv. een dakkoffer of de kerst spullen.
Tuin
De achtertuin is verzorgd aangelegd en beschikt over een zonneterras met zonneluifel, een gazon en borders met beplanting. Via de achterpoort is de tuin bereikbaar en daarnaast is er een vrijstaande houten berging, voorzien van elektra.
Algemene kenmerken
- 17 zonnepanelen;
- Gelegen in een rustige en groene woonomgeving;
- Kindvriendelijk gelegen;
- Volledig geïsoleerd;
- Alle etages voorzien van vloerverwarming;
- Privacy biedende, fraaie achtertuin;
- Moderne keuken en sanitair;
- Nabij diverse scholen, sportfaciliteiten, station, speelparken en winkels;
- Aanvaarding per oktober 2026.
Wilt u weten wat de verkoopmogelijkheden van uw eigen woning zijn? Neem gerust eens contact met ons op voor een vrijblijvend verkoopadvies.
Verkopers verlangen een waarborgsom/bankgarantie ter grootte van 10% van de koopsom.
Ons kantoor besteedt de uiterste zorg aan de betrouwbaarheid en actualiteit van de gegevens in de door ons samengestelde verkoopbrochure. Onjuistheden en onvolledigheden kunnen echter voorkomen. Aan de door ons gepresenteerde gegevens waaronder de teksten en plattegronden kunnen geen rechten worden ontleend. Twijfelt u aan de juistheid van de gegevens, vraag dan hoe deze zijn verkregen of kom nog een keer kijken. Probeer te allen tijde alle voor u relevante informatie vooraf te verkrijgen.
---------------------------------------------------------------------------------------------------------------------------
This property is offered to you by Van Der Duim Real Estate
Are you looking for a modern and youthful terraced house in the popular Nuenen-West area?
Located in a quiet, green, and child-friendly neighborhood near Eindhoven, this move-in-ready home offers 118 m² of living space. With energy label A, 17 solar panels, excellent insulation, and high-quality finishes, this property is both future-proof and energy-efficient.
LOCATION
Dubbe Loop 8 is situated in a peaceful, green, and spacious residential area in the sought-after Nuenen-West. The street is characterized by a pleasant and relaxed atmosphere with mostly local traffic, contributing to a safe and comfortable living environment. It’s a neighborhood where neighbors know each other, and tranquility and comfort go hand in hand.
Within a short distance, you will find various amenities such as shops for daily groceries, schools, sports facilities, and restaurants. The charming center of Nuenen, with a wide range of shops, terraces, and cultural offerings, is easily and quickly accessible.
Accessibility is excellent. Thanks to its convenient location near major roads, Eindhoven, Helmond, and surrounding villages are quickly reachable by car or public transport.
LAYOUT
Entrance
Upon arrival, you can park your car in the designated spaces on the quiet street. The neat front garden leads you to the entrance of the house.
Hallway
The hallway features a coat area, meter cupboard, and a modern guest toilet with a small sink. From the hall, you can access the stairs to the first floor and the living room through a door.
Living Room
The living room is bright and comfortable, with a PVC floor with underfloor heating, light-colored walls, and a smoothly finished ceiling. The large glass rear wall with a door to the garden ensures plenty of natural light. Air conditioning further enhances comfort. A practical storage cupboard under the stairs is located in the center of the living room.
Kitchen
The open kitchen is directly connected to the dining area and features a practical L-shaped layout with plenty of workspace. The composite countertop and complete built-in appliances provide a modern look and optimal convenience. The kitchen is equipped with:
4-burner induction hob with stainless steel extractor;
Refrigerator;
Freezer;
Microwave;
Oven;
Dishwasher;
Sink with mixer tap.
FIRST FLOOR
The first floor offers access to three bedrooms and the bathroom.
Bedrooms
All bedrooms feature PVC flooring with underfloor heating, uPVC frames with tilt-and-turn windows, and receive plenty of natural light. The walls and ceilings are smoothly finished, creating a calm and modern atmosphere.
Bathroom
The fully tiled bathroom is equipped with a bathtub, toilet, sink with cabinet, and walk-in shower.
SECOND FLOOR
Via a fixed staircase, you reach the second floor. The landing has air conditioning and PVC flooring and provides access to one bedroom, a multifunctional room, and the attic.
Bedroom IV
This room features a dormer with uPVC frames and a tilt-and-turn window, smoothly finished walls and ceilings, a PVC floor, and practical storage behind sliding panels. It is also ideal as a playroom or home office.
Multifunctional Room
Currently used as a dressing room and office, this space includes a skylight, recessed lighting, and storage behind sliding panels. The central heating system, laundry connections, and underfloor heating manifold are also located here.
Attic
Smart use of the attic has created extra storage space, perfect for items such as a roof box or Christmas decorations.
GARDEN
The rear garden is well-maintained and features a sunny terrace with awning, a lawn, and borders with plants. It is accessible via the back gate and includes a detached wooden shed with electricity.
GENERAL FEATURES
- 17 solar panels;
- Located in a quiet and green residential area;
- Child-friendly location;
- Fully insulated;
- Underfloor heating on all floors;
- Private and attractive backyard;
- Modern kitchen and sanitary facilities;
- Close to various schools, sports facilities, train station, playgrounds, and shops.
Would you like to know the sales possibilities for your own property? Feel free to contact us for a no-obligation sales consultation.
Sellers require a deposit/bank guarantee equal to 10% of the purchase price.
Our office takes the utmost care to ensure the reliability and accuracy of the information in this sales brochure. However, inaccuracies or omissions may occur. No rights can be derived from the information presented, including texts and floor plans. If you have any doubts about the accuracy of the information, please ask how it was obtained or arrange another viewing. Always try to obtain all relevant information in advance.





